Добро пожаловать на http://vipplan.ru

Випплан Томилино - это тысячи проектов домов в нашем каталоге!

Вы всегда сможете найти для себя проект дома вашей мечты! Даже если этого не случилось, мы готовы в любую минуту предложить проект индивидуального дома.

Забыли пароль?
Вы еще не регистрировались?

Перейдите по ссылке ниже на страницу регистрации.

Регистрация...

Внимание!!!

В проектную документацию могут быть внесены изменения любой сложности, в соответствии в Вашими пожеланиями!

Полезные статьи

Купить готовый проект дома или заказать индивидуальный?

Перед началом строительства дома возникает необходимость в проекте дома и тут встает вопрос: Купить готовый проект дома или заказать индивидуальный на заказ? Каждый из вариантов по своему хорош и имеет как свои плюсы так и минусы...

Окна в доме

От хорошего стеклопакета зависит почти 50% теплостойкости всего дома. Ведь на проемы в окнах приходится до 45% тепловых потерь дома. Поэтому хорошие стеклопакеты не пропускают тепло из комнаты и должны противостоять проникновению ветра, влаги и холода с наружной стороны....

Проекты домов и коттеджей > Каталог проектов домов > Проект загородного коттеджа с мансардой Vg1405

Проект загородного коттеджа с мансардой Vg1405

Проект загородного коттеджа с мансардой
Зарегистрируйтесь

Проект № Vg1405


Техническое описание
Общая площадь: 82.41 м2
Жилая площадь: 53.92 м2
Высота здания: 9.35 м
Размеры дома: 10.71м×7.42м
Кол-во комнат: 4
Цокольный этаж: нет
Гараж: нет
Мансарда: есть

Kонструкция
Фундамент: Монолитная ж/б плита
Перекрытия: Сборные ж/б плиты
Материал стен: Кирпич

Архитектурный раздел
Конструктивный раздел
АР+КР - 44 000 (Со скидкой 20%)
Проект индивидуального одноэтажного жилого дома с мансардой с размерами здания 10,71 x 7,42 м. Наружная отделка здания – облицовочный кирпич. Фундамент – монолитная ж/б плита (под всей площадью дома). Наружные стены – из забутовочного кирпича стехнологическим зазором и отделкой облицовочным кирпичом. Внутренние стены – из забутовочного кирпича. Перегородки – из забутовочного кирпича. Пол 1-го этажа – пол по фундаментной плите. Межэтажное перекрытие – сборные ж/б плиты. Чердачное перекрытие – деревянные балки. Перемычки: монолитные ж/б и из профиля проката. Крыша – многоскатная. Кровля – металлочерепица. Окна – металлопластиковые. Лестница – деревянная.
Генплан застройки участка / Паспорт проекта 7000 руб / 10000 руб
Инженерный раздел (полный) 50000 руб
Смета на строительство 25000 руб
Теплотехнический расчет материалов стен Бесплатно
Стоимость проекта со незначительнми изменениями 52950 руб
Стоимость проекта со средними изменениями* 59100 руб
Стоимость проекта со значительными изменениями** 60700 руб

План первого этажа


Прихожая — 5,64 м2
Холл — 4,52 м2
Гостиная — 23,75 м2
Кухня — 7,63 м2
С/у — 1,50 м2

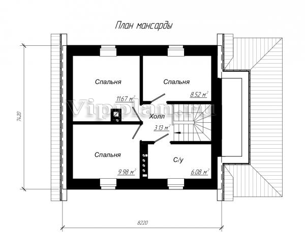
План мансардного этажа


Холл — 3,13 м2
Спальня — 8,52 м2
Спальня — 11,67 м2
Спальня — 9,98 м2
С/у — 6,08 м2
Проект загородного коттеджа с мансардой Проект загородного коттеджа с мансардой Проект загородного коттеджа с мансардой Проект загородного коттеджа с мансардой
Внесение изменений и привязка к участку строительства

В любой из проектов от компании VIPplan - Томилино по вашему желанию могут быть внесены изменения в материалы стен, материалы наружной отделки дома, а также будет произведена адаптация проекта под конкретный регион строительства (с учетом грунтов региона, геологических особенностей вашего участка и местных климатических условий) - БЕСПЛАТНО !!! (кроме проектов со скидкой и проектов наших партнеров).

Любой из проектов, размещенных на сайте tomilino.vipplan.ru мы можем выполнить из требуемых вам строительных материалов: ячеистый бетон (газобетон, пеноблок), керамоблок, кирпич, шлакоблок, бетонный блок, дерево (брус, клееный брус), каркасная технология (деревянный каркас, металлокаркас (ЛСТК)).

Фасад дома и его наружную отделку так же возможно выполнить с применением различных облицовочных материалов: структурной штукатурки, (с утеплителем и без), сайдингом (пластиковый или металлосайдинг), фиброплитами, кирпича.

 
6 Избранные
проекты

Доставка проектов по России: Москва (Московская область), Санкт-Петербург (Ленинградская область), Краснодар, Ростов-на-Дону, Ставрополь, Сочи, Волгоград, Новосибирск, Белгород, Брянск, Воронеж, Саратов, Хабаровск, Астрахань, Нальчик, Владикавказ, Екатеринбург, Тюмень, Самара, Нижний Новгород, Казань, Пермь, Уфа, Челябинск, Красноярск, Ханты-Мансийск, Иркутск, Курган, Оренбург, Омск, Томск, Барнаул, Новокузнецк, Кемерово, Абакан, Чита, Якутск, Южно-Сахалинск, Петропавловск-Камчатский и страны ближнего зарубежья: Белоруссия, Украина, Казахстан