Добро пожаловать на http://vipplan.ru

Випплан Томилино - это тысячи проектов домов в нашем каталоге!

Вы всегда сможете найти для себя проект дома вашей мечты! Даже если этого не случилось, мы готовы в любую минуту предложить проект индивидуального дома.

Забыли пароль?
Вы еще не регистрировались?

Перейдите по ссылке ниже на страницу регистрации.

Регистрация...

Внимание!!!

В проектную документацию могут быть внесены изменения любой сложности, в соответствии в Вашими пожеланиями!

Полезные статьи

Свайно-ростверковый, буронабивной фундамент

Для объединения свай в общий фундамент устанавливают бетонные ростверки (железобетонные плиты). Устройство ростверка зависит от расположения, вида свай и конструкции здания. Ростверки могут быть монолитными, сборными или сборно-монолитными, также возможны безростверковые решения. ...

Проект дома

Строительство дома начинается с подготовительного этапа, основной частью которого является проект. Разработка дизайнерского проекта сопровождается оформлением документов после выбора участка....

Проекты домов и коттеджей > Каталог проектов домов > Проект двухэтажного дома с цоколем и гаражом Vg1517

Проект двухэтажного дома с цоколем и гаражом Vg1517

Проект двухэтажного дома с цоколем и гаражом
Зарегистрируйтесь

Проект № Vg1517


Техническое описание
Общая площадь: 247.48 м2
Жилая площадь: 115.14 м2
Высота здания: 8.77 м
Размеры дома: 12.94м×13.17м
Кол-во комнат: 6
Цокольный этаж: есть
Гараж: нет
Мансарда: нет

Kонструкция
Фундамент: несъемная опалубка
Перекрытия: монолитное ж/б
Материал стен: Опалубка

Архитектурный раздел
Конструктивный раздел
АР+КР - 64 000 (Со скидкой 20%)
Проект индивидуального двухэтажного жилого дома с подвалом с размерами здания 12,94 x 13,17 м. Наружная отделка здания –фасадная штукатурка. Фундамент – несъемная опалубка (ЭПП,монолитный ж/б, ЭПП). Наружные стены – несъемная опалубка (ЭПП,монолитный ж/б, ЭПП, фасадная штукатурка). Внутренние стены - несъемная опалубка (ЭПП,монолитный ж/б, ЭПП). Перегородки – из рядового кирпича. Пол первого этажа - ж/б монолитное перекрытие. Межэтажное перекрытие - ж/б монолитное перекрытие. Чердачное перекрытие - по деревянным балкам с использованием теплошумоизоляционных материалов типа "URSA" в межбалочном пространстве. Крыша многоскатная. Кровля – битумная черепица. Окна — металлопластиковые
Генплан застройки участка / Паспорт проекта 7000 руб / 10000 руб
Инженерный раздел (полный) 123500 руб
Смета на строительство 61750 руб
Теплотехнический расчет материалов стен Бесплатно
Стоимость проекта со незначительнми изменениями 73800 руб
Стоимость проекта со средними изменениями* 92400 руб
Стоимость проекта со значительными изменениями** 97300 руб

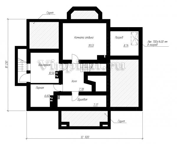
План цокольного этажа


Холл — 7,78 м2
Душевая — 7,17 м2
Парная — 6,60 м2
Бойлерная — 10,56 м2
Комната отдыха — 19,53 м2
Погреб — 8,74 м2

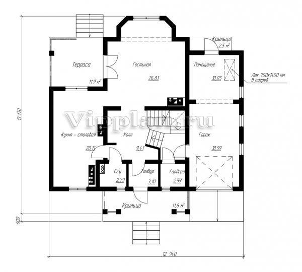
План первого этажа


Тамбур — 3,10 м2
Холл — 9,41 м2
С/у — 2,79 м2
Гардероб — 2,59 м2
Кухня-столовая — 20,11 м2
Гостиная — 26,83 м2
Помещение — 10,05 м2
Гараж — 18,59 м2

Проект двухэтажного дома с цоколем и гаражом

Проект двухэтажного дома с цоколем и гаражом

План второго этажа


Холл — 8,75 м2
Гардероб — 7,03 м2
Спальня — 18,59 м2
Спальня — 16,02 м2
С/у — 6,93 м2
Спальня — 12,26 м2
Спальня — 21,91 м2
Проект двухэтажного дома с цоколем и гаражом Проект двухэтажного дома с цоколем и гаражом Проект двухэтажного дома с цоколем и гаражом Проект двухэтажного дома с цоколем и гаражом

Модификации проектов

Внесение изменений и привязка к участку строительства

В любой из проектов от компании VIPplan - Томилино по вашему желанию могут быть внесены изменения в материалы стен, материалы наружной отделки дома, а также будет произведена адаптация проекта под конкретный регион строительства (с учетом грунтов региона, геологических особенностей вашего участка и местных климатических условий) - БЕСПЛАТНО !!! (кроме проектов со скидкой и проектов наших партнеров).

Любой из проектов, размещенных на сайте tomilino.vipplan.ru мы можем выполнить из требуемых вам строительных материалов: ячеистый бетон (газобетон, пеноблок), керамоблок, кирпич, шлакоблок, бетонный блок, дерево (брус, клееный брус), каркасная технология (деревянный каркас, металлокаркас (ЛСТК)).

Фасад дома и его наружную отделку так же возможно выполнить с применением различных облицовочных материалов: структурной штукатурки, (с утеплителем и без), сайдингом (пластиковый или металлосайдинг), фиброплитами, кирпича.

 
6 Избранные
проекты

Доставка проектов по России: Москва (Московская область), Санкт-Петербург (Ленинградская область), Краснодар, Ростов-на-Дону, Ставрополь, Сочи, Волгоград, Новосибирск, Белгород, Брянск, Воронеж, Саратов, Хабаровск, Астрахань, Нальчик, Владикавказ, Екатеринбург, Тюмень, Самара, Нижний Новгород, Казань, Пермь, Уфа, Челябинск, Красноярск, Ханты-Мансийск, Иркутск, Курган, Оренбург, Омск, Томск, Барнаул, Новокузнецк, Кемерово, Абакан, Чита, Якутск, Южно-Сахалинск, Петропавловск-Камчатский и страны ближнего зарубежья: Белоруссия, Украина, Казахстан