Добро пожаловать на http://vipplan.ru

Випплан Томилино - это тысячи проектов домов в нашем каталоге!

Вы всегда сможете найти для себя проект дома вашей мечты! Даже если этого не случилось, мы готовы в любую минуту предложить проект индивидуального дома.

Забыли пароль?
Вы еще не регистрировались?

Перейдите по ссылке ниже на страницу регистрации.

Регистрация...

Внимание!!!

В проектную документацию могут быть внесены изменения любой сложности, в соответствии в Вашими пожеланиями!

Полезные статьи

Комбинированные дома

Посмотрите, насколько далеко шагнула архитектура за последние десятилетия. Сколько изменилось в облике современных городов. А задумывались ли наши родители, о том что они увидят необыкновенные небоскребы и элитные многоквартирные дома, чьи фасады напоминают обруганную капиталистическую действительность. У людей появилась возможность построить дом за городом и в тишине на природе, реализовать любые дизайнерские фантазии. Те, кто может позволить себе частный дом, не ограничены финансами. Для многих частный дом – это показатель их материального благополучия, поэтому никто из них не хочет испол...

Искусственный камень

Среди современных материалов, особого внимания заслуживает искусственный камень. Естественность и красота натурального камня очевидна. Но нужно реально оценивать свои возможности и присмотреться именно к искусственному камню, так как сам искуственный камень и стоимость производства работ с ним в Томилине значительно дешевле чем натуральный....

Проекты домов и коттеджей > Каталог проектов домов > Проект одноэтажного дома с гаражом Vg2229

Проект одноэтажного дома с гаражом Vg2229

Проект одноэтажного дома с гаражом
Зарегистрируйтесь

Проект № Vg2229


Техническое описание
Общая площадь: 128.77 м2
Жилая площадь: 71.57 м2
Высота здания: 6.1 м
Размеры дома: 17.53м×14.04м
Кол-во комнат: 4
Цокольный этаж: нет
Гараж: нет
Мансарда: нет

Kонструкция
Фундамент: Свайно-ростверковый
Перекрытия: Деревянные балки
Материал стен: Газобетон

Архитектурный раздел
Конструктивный раздел
АР+КР - 52 000 (Со скидкой 20%)
Проект индивидуального одноэтажного жилого дома с размерами здания 17,53 x 14,04 м. Наружная отделка здания – фасадная штукатурка, деревянные панели, клинкерная плитка. Фундамент – свайно-ростверковый (буронабивной). Наружные стены – из газобетонного блока, утеплителя - экструдированный пенополистирол с фасадной штукатуркой и сайдингом. Внутренние стены – из газобетонного блока. Перегородки – из газобетонного блока. Пол этажа – пол по грунту. Чердачное перекрытие – деревянные балки. Крыша – многоскатная. Кровля – битумная черепица. Окна — металлопластиковые.
Генплан застройки участка / Паспорт проекта 7000 руб / 10000 руб
Инженерный раздел (полный) 64500 руб
Смета на строительство 32250 руб
Теплотехнический расчет материалов стен Бесплатно
Стоимость проекта со незначительнми изменениями 61750 руб
Стоимость проекта со средними изменениями* 71500 руб
Стоимость проекта со значительными изменениями** 74000 руб

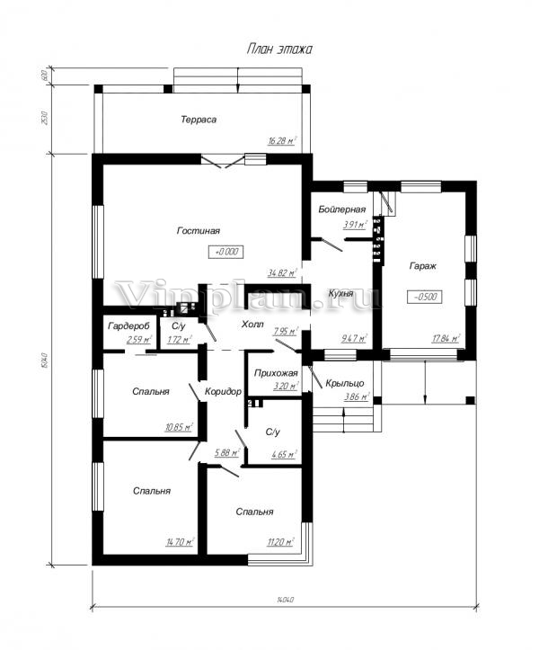
План первого этажа


Прихожая — 3,20 м2
Холл — 7,95 м2
Коридор — 5,88 м2
С/у — 4,65 м2
С/у — 1,72 м2
Гардероб — 2,59 м2
Спальня — 10,85 м2
Спальня — 14,70 м2
Спальня — 11,20 м2
Гостиная — 34,82 м2
Кухня — 9,47 м2
Бойлерная — 3,91 м2
Гараж — 17,84 м2
Проект одноэтажного дома с гаражом Проект одноэтажного дома с гаражом Проект одноэтажного дома с гаражом Проект одноэтажного дома с гаражом

Модификации проектов

Внесение изменений и привязка к участку строительства

В любой из проектов от компании VIPplan - Томилино по вашему желанию могут быть внесены изменения в материалы стен, материалы наружной отделки дома, а также будет произведена адаптация проекта под конкретный регион строительства (с учетом грунтов региона, геологических особенностей вашего участка и местных климатических условий) - БЕСПЛАТНО !!! (кроме проектов со скидкой и проектов наших партнеров).

Любой из проектов, размещенных на сайте tomilino.vipplan.ru мы можем выполнить из требуемых вам строительных материалов: ячеистый бетон (газобетон, пеноблок), керамоблок, кирпич, шлакоблок, бетонный блок, дерево (брус, клееный брус), каркасная технология (деревянный каркас, металлокаркас (ЛСТК)).

Фасад дома и его наружную отделку так же возможно выполнить с применением различных облицовочных материалов: структурной штукатурки, (с утеплителем и без), сайдингом (пластиковый или металлосайдинг), фиброплитами, кирпича.

 
6 Избранные
проекты

Доставка проектов по России: Москва (Московская область), Санкт-Петербург (Ленинградская область), Краснодар, Ростов-на-Дону, Ставрополь, Сочи, Волгоград, Новосибирск, Белгород, Брянск, Воронеж, Саратов, Хабаровск, Астрахань, Нальчик, Владикавказ, Екатеринбург, Тюмень, Самара, Нижний Новгород, Казань, Пермь, Уфа, Челябинск, Красноярск, Ханты-Мансийск, Иркутск, Курган, Оренбург, Омск, Томск, Барнаул, Новокузнецк, Кемерово, Абакан, Чита, Якутск, Южно-Сахалинск, Петропавловск-Камчатский и страны ближнего зарубежья: Белоруссия, Украина, Казахстан